Villa Manja Ground Floor Plan Realestate2buy Flickr
Villa Manja Seminyak Bali Vacation Villas
Malaysia Real Estate Property Sunway City Launched Villa Manja
Malaysia Property Reviews Villa Manja Sunway Spk Damansara
Gallery Of Manja Spa Playgroup Studio Ahcpl 20 Spa Studio Layout Ground Floor Plan
Villa Manja For Sale In Bandar Menjalara Propsocial
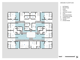
Naman Spa 220715 19 Spa Design Landscape Design Plans Spa Center
Villa Manja Hotelroomsearch Net
Ed Bid Properties Sdn Bhd Real Estate Agent Perai 5 Reviews 1 465 Photos Facebook
Gallery Of Eigent House Fabian Tan Architect 20
Resort Borneo Beach Villas Kota Kinabalu Trivago Sg
Malaysia Property Reviews Menjalara 18 Residences
Villa Manja Surrounded With Forrest And Vineyards Donji Vinjani Updated 2020 Prices